The AUSTLIFT Cantilever Davit System offers a secure and versatile solution for accessing confined spaces. Ideal for overhead anchorage, it mounts on various bases and surfaces, including floors, walls, and heavy vehicles. Constructed from highly corrosion-resistant G316 stainless steel, it swivels 360° for maximum accessibility.
Key Features:
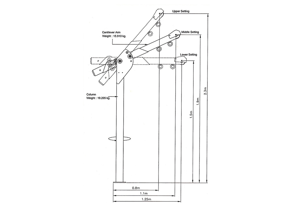
Physical Parameters:
Vital Test Compliance:
Why Choose The Lifting Guys:
$3,234.00
Reviews
There are no reviews yet.